Print page icon
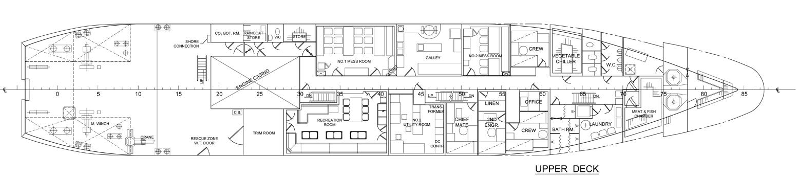
Northern Endeavour Upper Deck Plans