Print page icon
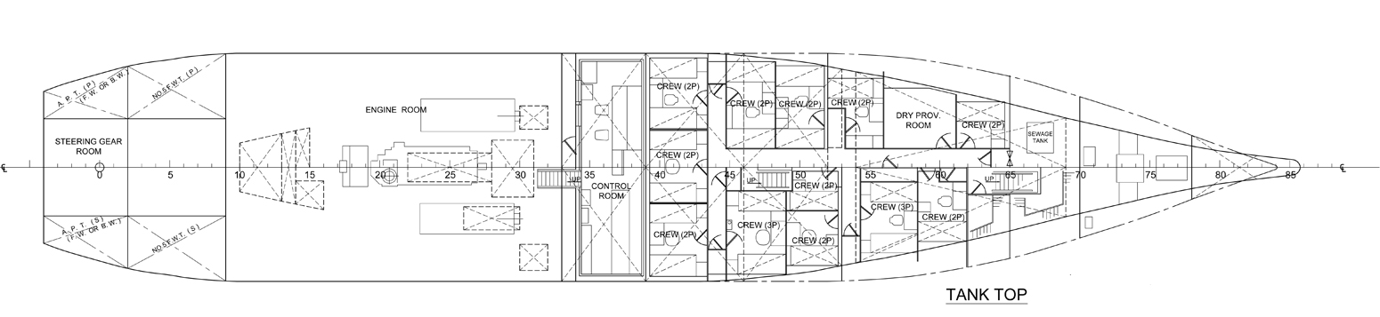
Northern Endeavour Tank Top Plans