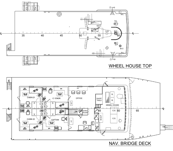
Northern Endeavour Wheelhouse Nav Bridge Deck Plans
Print page icon